Hallo Birki,
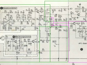
Ich habe ein Freiburg TC (G Model) zuhause (G95211) und habe diesen Gerat geöffnet und die Anschlüsse Dokumentiert. Siehe auch die angehängte Bilder.
Gelb/Schwartz -> #3
Grün -> #1
Rot/Schwartz -> #4 (edit korrigiert nach Korrekte angabe von Reinhard)
Rot -> zur Sicherung Si951
Schwartz -> #6
Braun -> zur lila Drähtchen an der lotstutze.
Damit brauche ich nicht zu warten bis ich zur meiner Halle fahren kann (wo ich die andere TC habe):
Ich habe ein Freiburg TC (G Model) zuhause (G95211) und habe diesen Gerat geöffnet und die Anschlüsse Dokumentiert. Siehe auch die angehängte Bilder.
Gelb/Schwartz -> #3
Grün -> #1
Rot/Schwartz -> #4 (edit korrigiert nach Korrekte angabe von Reinhard)
Rot -> zur Sicherung Si951
Schwartz -> #6
Braun -> zur lila Drähtchen an der lotstutze.
Damit brauche ich nicht zu warten bis ich zur meiner Halle fahren kann (wo ich die andere TC habe):
Raymond
Carpe Diem
Carpe Diem
Dieser Beitrag wurde bereits 6 mal editiert, zuletzt von „alpinab10biturbo“ ()


