Einschaltverzögerung der Endstufen, 9240S

      Neu

      Machen wir es etwas einfacher!

      Soweit ich mich erinnere, machtest Du bis jetzt nur Radiobetrieb.
      Das bitte zuerst klären, ob der Fehler auch mit z.B. Kassettenrekorder oder CD vorliegt.
      Wäre ja ein Ding, wenn der nur bei Radio ist!

      Reinhard hat ein schönes Messblatt hochgeladen, kannte ich noch nicht.
      Das würde ich noch nicht komplett abarbeiten.
      Interessant ist der Kasten 15 Netzteilplatine.
      Miss erst mal nur die Spannungen, wenn der Fehler nicht nur bei Radio ist.
      Das wird dann übersichtlicher, Ausschlussverfahren, Messungen etappenweise.
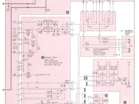
      Anbei das Schaltbild von "15 Netzteil-Mod".
      Erfahrungsgemäß sind da häufiger Fehler, gammelige Lötstellen und Elkos.

      Andreas

      Edit:
      Aufpassen mit dem Schaltplanausschnitt, siehe Anmerkung von Reinhard zwei Beiträge weiter!
      Bilder
      • saba9260s14.jpg

        225,97 kB, 1.146×1.679, 4 mal angesehen
      Was bedeutet DL2JAS? Amateurfunk, www.dl2jas.com

      Neu

      Moin,
      Oszilloskop habe ich, aber in die Bedienung muss ich mich erst wieder einarbeiten. Ist für meine Rentenzeit geplant. :D
      Die Messtabelle ist Klasse, damit kann ich arbeiten. :) Geht morgen los.

      Ich hab heute nochmal etwas experimentiert. Ich konnte, nachdem der Receiver angefangen hat normal zu spielen, das Gerät mehrfach Ein- und Ausschalten wobei alles normal (ohne Verzögerung) funktionierte.
      Nach 2 Stunden Stehzeit (Aus), wieder die bekannte Verzögerung. Echt seltsam.

      Grüße

      Neu

      Das von Andreas abgebildete Schaltbild (das ist vom 9260) nicht nehmen!
      Das vom 9240/9241 ist beim Netzteil anders. Auch die Anschluss-Bezeichnungen.

      Im übrigen halte ich das möglichst vollständige Nachprüfen der Spannungen an den im Messblatt genannten Messpunkten bei Spannungsproblemen für zielführender.
      Wenn man schon mal misst, kann man gleich alle in der Tabelle genannten Messpunkte auf der Unterseite ohne viel Zusatzaufwand gleich mitmessen. Das ist das Einfachste! Die liegen ja (fast alle) wie auf einem Präsentierteller vor einem und es gibt sofort den Gesamtüberblick. Das ist bei Problemen an einem Gerät der 92xy Serie immer das Erste, was man machen sollte, weil man danach weiss, ob die Spannungsversorgungen an den Modulen einwandfrei sind oder zu welchem Modul evtl. eine Versorgung ausgefallen ist Und das ist keinesfalls nur eine "theoretische Meinung", sondern praktische Erfahrung aus vielen Reparaturen dieser 92xy SABAs.

      Am Netzteil selbst kann u.U. alles ok sein und die erforderliche Spannung am gelisteten Messpunkt (direkt an der betreffenden Steckmodulleiste) trotzdem nicht ankommen, z.B. wenn es einen Haarriss gibt (häufiger als man gewöhnlich denkt) , eine schlechte Lötstelle (selten bei 92xy), usw. Deshalb geht man gleich entsprechend Messblatt-Tabelle vor, statt erstmal nur am Netzteil selbst zu messen. Einen Schaltplan benötigt man zum Messen der Messpunkte nach Messblatt noch nicht einmal. Denn die Punkte sind ja (fast) alle auf der Platinenunterseite der beiden Hauptplatinen entsprechend markiert.

      Gruß
      Reinhard

      Dieser Beitrag wurde bereits 5 mal editiert, zuletzt von „oldiefan“ ()

    • Benutzer online 5

      5 Besucher